

06-6777-4671
| 交通機関 | 近鉄難波・奈良線「大阪上本町」駅/徒歩7分 大阪メトロ谷町線「谷町九丁目」駅/徒歩11分 大阪メトロ千日前線・近鉄大阪線「鶴橋」駅/徒歩9分 |
||||
|---|---|---|---|---|---|
| 総戸数 | 166戸 | 階建 | 32階部分/35階建て | ||
| 現況 | 空室 | 駐車場有無 | 空有※要確認 | ||
| 引渡時期 | 即時 | バルコニーの向き | 東向・北向 | ||
| 用途 | 第二種住居専用地域 | 土地権利 | 所有権 | ||
| 駐車場月額 | 20,000~34,000円/月 | その他法令 | 市街化区域 | ||
| 管理形態 | 全部委託/日勤 | その他費用 | その他費用 2,575円/月 内訳:自治会費 400円、ホームセキュリティ料 525円、インターネット使用料 1,650円/月 | ||
| 管理会社名 | 伊藤忠アーバンコミュニティ㈱ | 取引態様 | - | ||
| 分譲会社 | 伊藤忠都市開発、神鋼不動産、レイディクス不動産 | 接道 | - | ||
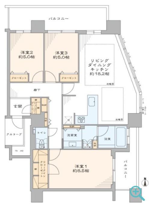
| 間取り詳細 | LDK 18.2帖、洋室 5.0帖、洋室 5.0帖、洋室 8.5帖 | ||||
| 校区 | 桃陽小学校 夕陽丘中学校 |
||||
| 設備・条件 |
※アルコーブあり(3.09㎡) 【令和7年10月 室内リフォーム済】 ●フローリング新規貼替 ●建具・玄関収納等新規交換 ●壁・天井クロス新規貼替 ●TOTO製洗面化粧台新規交換 ●TOTO製洗浄便座付タンクレストイレ新規交換 ●TOTO製追焚機能(循環式)付ユニットバス新規交換(浴室換気乾燥機付) ●田中工藝製システムキッチン新規交換 ●ディスポーザー新規設置 ●エアコン一基新規設置 ●照明器具新規設置 ●給湯器新規交換 ●床暖房マット新規設置 ※1 シーリングライトは、販売には含まれません ※2 給湯器の新規交換は設備の納品後になります
|
||||
| 備考 | 各階ゴミ出し、コンシェルジュ、免震工法 | ||||
| 物件番号 | - | ||||
情報登録日:2025/12/14 次回の情報更新予定日:-
※地図上に表示される物件の位置は、実際の物件所在地とは異なる場合がございます。
※各種情報と現況に差異がある場合は、現況優先となります。
〒543-0031 大阪市天王寺区上本町7丁目4-25-1F
TEL:06-6777-4671 / FAX:06-6777-4672
Mail:harima@harimafudousan.com
宅建免許番号: 大阪府知事 (3) 第55893号